分譲価格5,090万円
- 土地面積
- 169.34m²(51.22坪)
- 建物面積
- 100.81m²(30.49坪)
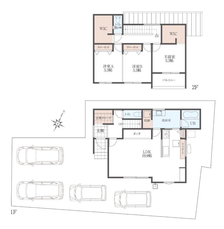
- 間取り
- 3LDK+4S(玄関クローク/WIC×2/収納)
- 所在地
- 愛知県刈谷市高須町艮75番9、10
LAYOUT PLAN間取り図・区画図
POINT見どころ
刈谷で駐車4台&3か所のWICとヌック
上質さと柔らかさを両立したナチュラルモダンの家
コミュニティタウン刈谷市高須町2 No.4
続きをみる
明るい木目とグレージュ・ホワイトが調和した、上質で柔らかな住まい。
アクセントの石目調クロスが木の温もりを引き立てます。
洗練された空間で、至福の時間を過ごしてみませんか。
このお家のポイント
建 建物ポイント
- ワイドサッシ&下げ天井のLDK (19.9 帖)
- LDKのカウンタースペース
環 環境ポイント
- 51坪の広々敷地
- 保育園・公園が近い(徒歩約5分)
- アピタ刈谷店が車で約5分
間 間取り設計
- 小上がりの隠れ家ヌック
- 3 箇所のWIC (洗面室、廊下、主寝室)
- 間仕切り可能な2部屋の洋室
- 広々な駐車スペース&庭
パノラマVR
VRの空間でお家を体感できます◎
※CGのVRの場合は、建物の完成イメージとなります。
月々の支払い例
コミュニティタウン刈谷市高須町2 No.4
頭金0円 変動金利1.03%・40年返済・ボーナス払い(年2回)
例1:ボーナス払い
約 249,877円
約 249,877円
月々
87,852
円
87,852
円
例2:ボーナス払い
約 199,443円
約 199,443円
月々
96,243
円
96,243
円
お家の支払額シミュレーション
断熱性
High Spec
一年中快適な高い気密×断熱の家
夏は涼しく、冬は暖かな住まいを実現します。
年中快適な
気密×断熱
気密×断熱
続きをみる
水で発泡する「アクアフォームLITE」を採用
高い断熱性と優れた気密性によりエアコンの消費電力を抑えます。軽量なウレタンの断熱材で、家の柱・躯体に負担をかけません。
優れた気密性
隙間をシャットアウト
隙間をシャットアウト
高い断熱性
熱の出入りを抑制
熱の出入りを抑制
OUTLINE物件概要
| 所在地 | 愛知県刈谷市高須町艮75番9、10 | 価格 | 5,090 万円 |
|---|---|---|---|
| 交通 | JR 東海道本線「刈谷」駅 徒歩約20分 (約1,600m) | ||
| 建物面積 | 100.81m²(30.49坪) | 土地面積 | 169.34m²(51.22坪) |
| 間取り | 3LDK+4S(玄関クローク/WIC×2/収納) | 構造 | 木造軸組工法 |
| 駐車場 | 4台可能 | 建築確認番号 | 第愛建2026建築確認00697号 |
| 建ぺい率 | 60 % | 容積率 | 200 % |
| 用途地域 | 第一種住居地域 | 地目 | 宅地 |
| 学校区 | 刈谷市立双葉小学校/刈谷市立依佐美中学校 | 接道状況 | 西側公道幅員 約3.30m |
| 取引態様 | 売主 | 土地権利 | 所有権 |
| 設備 | 公営水道、公共下水、オール電化、中部電力 | ||
| 備考 | ※CGパースやCGのパノラマVRは建物の完成イメージです。 | ||
ENVIRONMENT周辺環境
-

JR東海道本線「刈谷」駅
徒歩約20分(約1,600m)
名古屋方面も三河方面もスムーズに移動可能◎JR・名鉄が利用でき、通勤や通学に便利。
-

ミルキィランド たかす園
徒歩約5分(約400m)
生後2か月から対象。7:30~19:00 の間で家庭の状況に合わせて保育の受入れをします。
-

刈谷市立双葉小学校
徒歩約14分(約1,100m)
校訓は「まじめに なかよく がんばろう」。安全で快適な学習環境が整い、通学にも安心。
-

刈谷市立依佐美中学校
自転車約13分(約2,500m)
自尊感情を高め、確かな学力を身に付け、心身ともに健康な生徒の育成をします。
ACCESSマップ
Googleマップの拡大地図にピンが
表示されない場合がございます。
EQUIPMENT設備・仕様
-

宅配ボックス/駐車場土間コンクリート -

【玄関】玄関クローク/人感センサー照明/電気錠 -

TVモニター付きドアホン -

キッチン(IHコンロ【オール電化】/深型食洗機 /タッチレス水栓)/カップボード -

タンクレストイレ/スリム手洗い -

収納 (洗面室) -

WIC (2階に2か所) -

家具/エアコン (LDK) -

EV・PHEV充電用 屋外コンセント (イメージ写真です) -

太陽光発電システム+HEMS「COCOROPOWER」
※本物件は太陽光無料設置サービス対象(PPA)です。※サービス期間は15年です。※買取への変更も可能です。 -

国土交通大臣認定【Kダンパー】
MAILFORM来場予約・資料請求
※ GW・夏季・冬季の長期休業期間を除き、ご予約を承っております。

