分譲価格3,590万円
- 土地面積
- 152.00m²(45.98坪)
- 建物面積
- 100.19m²(30.30坪)
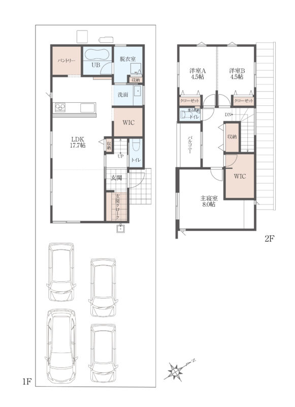
- 間取り
- 3LDK+4S(玄関クローク/パントリー/WIC×2)
- 所在地
- 愛知県碧南市笹山町1丁目31番12
LAYOUT PLAN間取り図・区画図
POINT見どころ
遊び心のあるシンプルモダンな家
スマイルガーデン碧南市笹山町1 No.8
続きをみる
ダーク系の木目がベースの、落ち着きのあるシンプルモダンな家。
遊び心のある色や柄を添えて、トレンド感を演出しました。
日常が少し特別になる、感性豊かな住まいです。
このお家のポイント
建 建物ポイント
- 造作カウンター付きの書斎スペース(主寝室)
- シンプルモダンテイストのインテリア
環 環境ポイント
- 閑静な住宅地
- 市街地が近い
- 保育園、コンビニ、スーパー、病院が徒歩圏内◎
- 約45坪の敷地
間 間取り設計
- 使い勝手抜群◎パントリー付きのキッチン
- 玄関クローク&各階のWIC
- 2部屋続きの洋室
- 駐車4台可能
パノラマVR
VRの空間でお家を体感できます◎
※CGのVRの場合は、建物の完成イメージとなります。
月々の支払い例
スマイルガーデン碧南市笹山町1 No.8
頭金0円 変動金利1.03%・40年返済・ボーナス払い(年2回)
約 149,773円
66,366
円
約 99,339円
74,757
円
お家の支払額シミュレーション
断熱性
一年中快適な高い気密×断熱の家
夏は涼しく、冬は暖かな住まいを実現します。
気密×断熱
続きをみる
水で発泡する「アクアフォームLITE」を採用
高い断熱性と優れた気密性によりエアコンの消費電力を抑えます。軽量なウレタンの断熱材で、家の柱・躯体に負担をかけません。
隙間をシャットアウト
熱の出入りを抑制
OUTLINE物件概要
| 所在地 | 愛知県碧南市笹山町1丁目31番12 | 価格 | 3,590 万円 |
|---|---|---|---|
| 交通 | 名鉄三河線「北新川」駅 約1,800m(徒歩約23分) | ||
| 建物面積 | 100.19m²(30.30坪) | 土地面積 | 152.00m²(45.98坪) |
| 間取り | 3LDK+4S(玄関クローク/パントリー/WIC×2) | 構造 | 木造軸組工法 |
| 駐車場 | 4台可 | 建築確認番号 | 第愛建2026建築確認00394号 |
| 建ぺい率 | 60 % | 容積率 | 100 % |
| 用途地域 | 第一種低層住居専用地域 | 地目 | 田(宅地) |
| 学校区 | 碧南市立鷲塚小学校/碧南市立東中学校 | 接道状況 | 南東側公道幅員 約4.00m |
| 取引態様 | 売主 | 土地権利 | 所有権 |
| 設備 | 公営水道、公共下水、オール電化、中部電力 | ||
| 備考 | ※CGパースやCGのパノラマVRは建物の完成イメージです。 | ||
ENVIRONMENT周辺環境
-

名鉄三河線「北新川」駅
徒歩約23分(約1,800m)
自転車で自宅から駅まで約9分。普通電車が1時間に約4本停車し、知立方面は5時台~23時台まで運行します。刈谷駅までの所要時間は約17分です。
-

荒子保育園
徒歩約3分(約240m)
0歳児~5歳児対象。7:30~19:00 の間で保護者の勤務都合等に合わせて保育します。
-

碧南市立鷲塚小学校
徒歩約20分(約1,600m)
碧南市旭町にある小学校。校訓は「強く正しく明るくすなおに 進んで学び 楽しんで働く」
-

碧南市立東中学校
徒歩約20分(約1,600m)
碧南市天神町にある中学校。日々の教育実践を通して社会を生き抜く力を養うことを目ざします。
-

荒子児童遊園
徒歩約4分(約250m)
子どもたちの身近な遊び場として、広場、ブランコ、すべり台などの遊具を設けています。
-

バロー碧南城山店
徒歩約13分(約1,000m)
【営業時間】10:00~21:00(日曜日は9:30に開店)※祝日の営業時間はその曜日に準じます。
-

碧南市民病院
徒歩約7分(約500m)
【受付時間】8:30~11:00 【休診日】土曜日、日曜日、祝日および年末年始(12月29日~1月3日)
ACCESSマップ
Googleマップの拡大地図にピンが
表示されない場合がございます。
EQUIPMENT設備・仕様
-

宅配ボックス/駐車場土間コンクリート -

【玄関】玄関クローク/人感センサー照明/電気錠 -

TVモニター付きドアホン -

キッチン(IHコンロ【オール電化】/深型食洗機 /タッチレス水栓)/カップボード -

タンクレストイレ/スリム手洗い -

パントリー -

WIC×2(各階に1か所) -

家具/エアコン(LDK) -

EV・PHEV充電用 屋外コンセント (イメージ写真です) -

太陽光発電システム+HEMS「COCOROPOWER」
※本物件は太陽光無料設置サービス対象(PPA)です。※サービス期間は15年です。※買取への変更も可能です。 -

国土交通大臣認定【Kダンパー】
MAILFORM来場予約・資料請求
※ GW・夏季・冬季の長期休業期間を除き、ご予約を承っております。

