分譲価格4,790万円
- 土地面積
- 165.55m²(50.07坪)
- 建物面積
- 103.51m²(31.31坪)
- 間取り
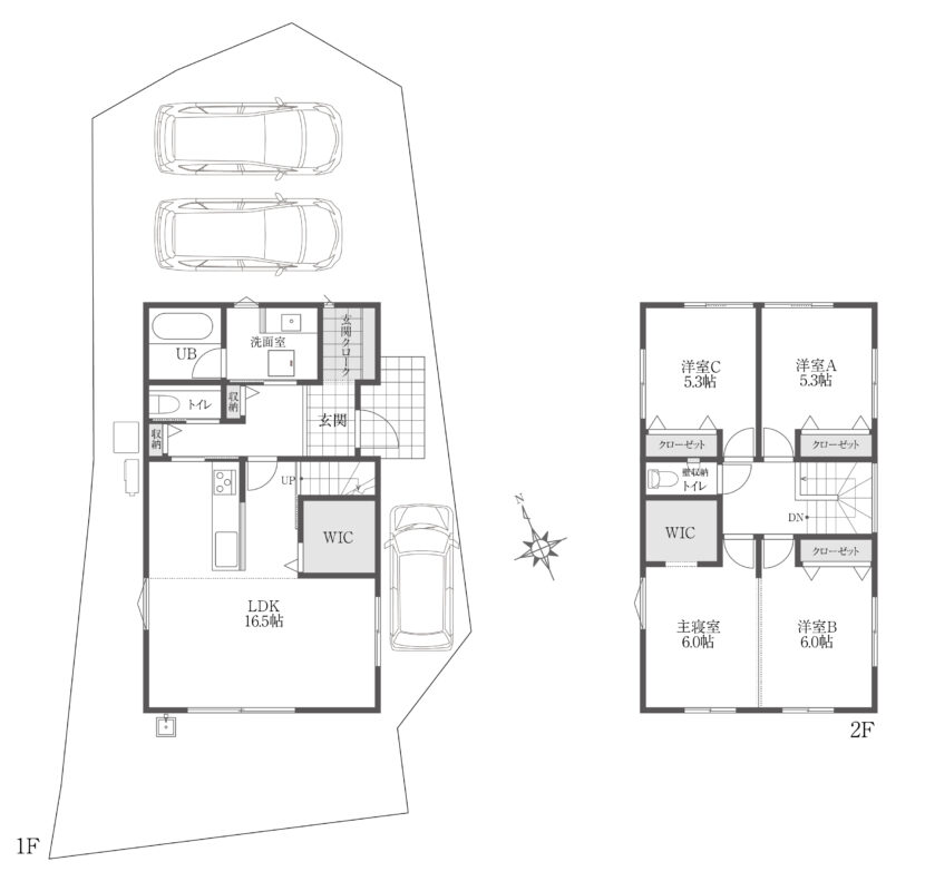
- 4LDK+3S(玄関クローク/WIC×2)
- 所在地
- 愛知県刈谷市小垣江町半崎18番15、16
LAYOUT PLAN間取り図・区画図
POINT見どころ

駐車3台可 お庭とファミクロがある4LDK
ミニマルで温かみを感じられる住まい
続きをみる
外観も内観も高級感を感じつつも、
ワンポイントで木目や暖色を入れることで
温かみも感じられる住まい。
洗練された美しさと、暮らしに
寄り添う温もりが、空間全体に
心地よく広がります。
このお家のポイント
【建物ポイント】
- LDKのワイドサッシ(1.5倍)
- 庭スペース
- 温かみのある造作洗面台
【環境ポイント】
- 閑静な住宅地
- 保育園が徒歩約7分◎
コンビニ、公園も徒歩圏内 - 小学校 徒歩約11分
【間取り設計のポイント】
- 家族で使えるファミリークローゼット
- 大容量の収納
玄関クローク&WIC - 間仕切りでアレンジできる
2部屋続きの洋室&主寝室 - 駐車3台可能
パノラマVR
VRの空間でお家を体感できます◎
CGのウォークスルーの場合は、
建物の完成イメージとなります。
月々の支払い例
頭金0円 変動金利0.80%・40年返済・ボーナス払い(年2回)
コミュニティタウン刈谷市小垣江町3 No.5
例1 ボーナス払い約 249,462円
月々 75,122円
例2 ボーナス払い約 199,716円
月々 83,402円
お家の支払額シミュレーション
物件価格に建売の分譲価格を入力
断熱性
夏は涼しく、冬は暖か
高い断熱性で
快適な暮らしを実現します。
続きをみる
水で発泡する高気密・高断熱の断熱材
「アクアフォームLITE」

高い断熱性と優れた気密性により
エアコンの消費電力を抑えます。
軽量なウレタンの断熱材で、
家の柱・躯体に負担をかけません。
OUTLINE物件概要
| 所在地 | 愛知県刈谷市小垣江町半崎18番15、16 | 価格 | 4,790 万円 |
|---|---|---|---|
| 交通 | 名鉄三河線「小垣江」駅 徒歩約13分(約1,000m) | ||
| 建物面積 | 103.51m²(31.31坪) | 土地面積 | 165.55m²(50.07坪) |
| 間取り | 4LDK+3S(玄関クローク/WIC×2) | 構造 | 木造軸組工法 |
| 駐車場 | 3台 | 建築確認番号 | 第愛建2025建築確認02085号 |
| 建ぺい率 | 60 % | 容積率 | 200 % |
| 用途地域 | 第一種住居地域 | 地目 | 宅地 |
| 学校区 | 刈谷市立小垣江小学校/刈谷市立依佐美中学校 | 接道状況 | 北側公道幅員 約3.23m、西側公道幅員 約2.93m |
| 取引態様 | 売主 | 土地権利 | 所有権 |
| 設備 | 公営水道、公共下水、オール電化、中部電力 | ||
| 備考 | ※CGパースやCGのパノラマVRは建物の完成イメージです。 | ||
ENVIRONMENT周辺環境
-

名鉄三河線「小垣江」駅
徒歩約13分(約1,000m)
普通電車が1時間に約4本停車。知立方面は5時台~23 時台まで運行します。刈谷駅までの乗車時間は約6分です。
-

おがきえ保育園
徒歩約7分(約550m)
入園は0歳児から対象です。7:00~20:00の間で 家庭の状況に合わせて保育の受入れをします。
-

刈谷市立小垣江小学校
徒歩約11分(約850m)
小垣江町にある公立小学校。人間性豊かで、たくましく、積極的に活動できる児童を育成します。
-

刈谷市立依佐美中学校
自転車約12分(約2,300m)
自尊感情を育み、高める学校をめざします。整備された通学路で毎日の登校も安心。
-

ゲンキー小垣江下広店
徒歩約11分(約850m)
【営業時間】9:00〜21:00 食品や医薬品など、ちょっとしたお買い物に便利なドラッグストア。自宅からも通いやすい距離です◎
-

JA あいち中央 でんまぁと刈谷南店
自転車約8分(約1,600m)
【営業時間】9:00~18:00 地元の採れたての野菜・果物が数多く並ぶ、農産物直売所。生産者が朝一番で直接運び込むので、毎日新鮮な青果を購入できます。
ACCESSマップ
Googleマップの拡大地図にピンが
表示されない場合がございます。
EQUIPMENT設備・仕様
-

宅配ボックス/駐車場土間コンクリート -

【玄関】玄関クローク/人感センサー照明/電気錠 -

TVモニター付きドアホン -

キッチン(IHコンロ【オール電化】/深型食洗機 /タッチレス水栓)/カップボード -

タンクレストイレ/スリム手洗い -

WIC×2(各階に1か所) -

家具/エアコン(LDK) -

EV・PHEV充電用 屋外コンセント (イメージ写真です) -

太陽光発電システム+HEMS「COCOROPOWER」
※本物件は太陽光無料設置サービス対象(PPA)です。※サービス期間は15年です。※買取への変更も可能です。 -

国土交通大臣認定【Kダンパー】

