分譲価格4,390万円
- 土地面積
- 130.64m²(39.51坪)
- 建物面積
- 101.85m²(30.80坪)
- 間取り
- 3LDK+2S(玄関クローク/WIC)
- 所在地
- 愛知県高浜市湯山町8丁目9番21
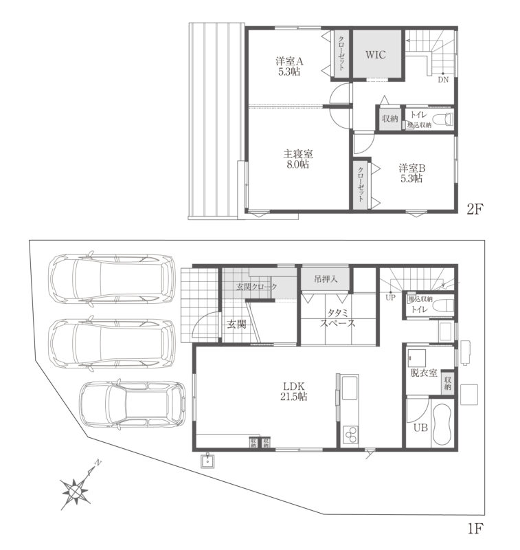
LAYOUT PLAN間取り図・区画図
POINT見どころ

駐車3台可 タタミがある21帖のLDK
カジュアルモダンでゆとりのある家
続きをみる
床のグレージュをベースに、
石目柄や木目を程よく取り入れた
カジュアルモダンなインテリア。
お洒落なR垂れ壁やニッチが空間を
彩ります。心地よい空間で、
ご家族との時間を楽しんでみませんか。
このお家のポイント
【建物ポイント】
- 石目柄や木目をアクセントに取り入れた
カジュアルモダンのインテリア - おしゃれな造作洗面台
洗面脱衣別の間取りで使い勝手も◎
【環境ポイント】
- 穏やかな住宅街
- 保育園、中学校のアクセス◎
- スーパー、駅、病院、図書館、郵便局が徒歩圏内
充実した住環境で暮らしたい方に◎
【間取り設計のポイント】
- 高天井で開放的
21.5 帖のLDK - リビングに調和する
おしゃれなタタミスペース - 広々1.3 帖の玄関クローク
- 間仕切りでアレンジできる
2部屋続きの主寝室&洋室 - 廊下からアクセスできるWIC
パノラマVR
VRの空間でお家を体感できます◎
CGのウォークスルーの場合は、
建物の完成イメージとなります。
月々の支払い例
頭金0円 変動金利0.80%・40年返済・ボーナス払い(年2回)
コミュニティタウン高浜市湯山Ⅶ D棟
例1 ボーナス払い約 226,784円
月々 69,156円
例2 ボーナス払い約 166,796円
月々 79,140円
お家の支払額シミュレーション
物件価格に建売の分譲価格を入力
断熱性
夏は涼しく、冬は暖か
高い断熱性で
快適な暮らしを実現します。
続きをみる
水で発泡する高気密・高断熱の断熱材
「アクアフォームLITE」

高い断熱性と優れた気密性により
エアコンの消費電力を抑えます。
軽量なウレタンの断熱材で、
家の柱・躯体に負担をかけません。
OUTLINE物件概要
| 所在地 | 愛知県高浜市湯山町8丁目9番21 | 価格 | 4,390 万円 |
|---|---|---|---|
| 交通 | 名鉄三河線「三河高浜」駅 徒歩約9分 (約700m) | ||
| 建物面積 | 101.85m²(30.80坪) | 土地面積 | 130.64m²(39.51坪) |
| 間取り | 3LDK+2S(玄関クローク/WIC) | 構造 | 木造軸組工法 |
| 駐車場 | 3台 | 建築確認番号 | 第愛建2025建築確認01624号 |
| 建ぺい率 | 60 % | 容積率 | 200 % |
| 用途地域 | 第一種中高層住居専用地域 | 地目 | 宅地 |
| 学校区 | 高浜市立翼小学校/高浜市立高浜中学校 | 接道状況 | 南西側公道幅員 約 4.24m、南側公道幅員 約6.09m |
| 取引態様 | 売主 | 土地権利 | 所有権 |
| 設備 | 公営水道、公共下水、オール電化、中部電力 | ||
| 備考 | ※CGパースやCGのパノラマVRは建物の完成イメージです。 | ||
ENVIRONMENT周辺環境
-

名鉄三河線「三河高浜」駅
徒歩約9分(約700m)
三河高浜駅から刈谷駅まで15分弱。駐輪場付きで通勤も◎
-

よしいけ保育園
徒歩約5分(約350m)
食や行事を通し、季節を感じて遊ぶことを大切にしています。園の公式Instagramでお子様の成長を見守れます。
-

高浜市立翼小学校
徒歩約12分(約950m)
教育目標は「心豊かで進んで行動できる子どもを育てる」。ブログでお子様の生活を見守れます。
-

高浜市立高浜中学校
徒歩約2分(約120m)
部活動や課外授業で遅くなっても安心の近さ。お子様の頑張りを目いっぱい応援できます。
-

フェルナ沢渡店
徒歩約9分(約650m)
【営業時間】9:00~21:00 家から徒歩でアクセスできる距離なので、毎日のお買い物に便利です。
-

高浜豊田病院
徒歩約5分(約350m)
【診療科目】内科、外科、整形外科、眼科 【受付時間】月曜日~金曜日 8:30~11:00
-

高浜郵便局
徒歩約7分(約550m)
【郵便窓口】9:00~17:00
ACCESSマップ
Googleマップの拡大地図にピンが
表示されない場合がございます。
EQUIPMENT設備・仕様
-

宅配ボックス/駐車場土間コンクリート -

【玄関】玄関クローク/人感センサー照明/電気錠 -

TVモニター付きドアホン -

キッチン(IHコンロ 【オール電化】/深型食洗機 /タッチレス水栓)/カップボード -

タンクレストイレ -

WIC -

家具/エアコン(LDK) -

EV・PHEV充電用 屋外コンセント (イメージ写真です) -

太陽光発電システム+HEMS「COCOROPOWER」
※本物件は太陽光無料設置サービス対象(PPA)です。※サービス期間は15年です。※買取への変更も可能です。 -

国土交通大臣認定【Kダンパー】
MAILFORM来場予約・資料請求
※ ご見学については、GW・夏季・冬季の長期休業をのぞいてご予約を承ります。

